一、实验目的
⒈了解脉冲填料萃取塔、搅拌萃取塔、往复筛板萃取塔的结构。
⒉掌握萃取塔性能的测定方法。
⒊了解萃取塔传质效率的强化方法。
二、实验内容
⒈观察有无空气脉冲或不同进气量或不同搅拌转速时,塔内液滴变化情况和流动状态。
⒉固定两相流量,测定有无脉冲或不同进气量或不同搅拌转速时或不同往复频率时萃取塔的传质单元数
、传质单元高度
及总传质系数
。
三、实验原理
填料萃取塔是石油炼制、化学工业和环境保护等部门广泛应用的一种萃取设备,具有结构简单、便于安装和制造等特点。塔内填料的作用可以使分散相液滴不断破碎与聚合,以使液滴的表面不断更新,还可以减少连续相的轴向混合。
在普通填料萃取塔内,两相依靠密度差而逆向流动,相对速度较小,界面湍动程度低,限制了传质速率的进一步提高。为了防止分散相液滴过多聚结,增加塔内流体的湍动,可采用连续通入或断续通入压缩空气(脉冲方式)向填料塔提供外加能量,增加液体湍动。当然湍动太厉害,会导致液液两相乳化,难以分离。
桨叶式旋转萃取塔也是一种外加能量的萃取设备。在塔内由环行隔板将塔分成若干段,每段的旋转轴上装设有桨叶。在萃取过程中由于桨叶的搅动,增加了分散相的分散程度,促进了相际接触表面积的更新与扩大。隔板的作用在一定程度上抑制了轴向返混,因而桨叶式旋转萃取塔的效率较高。桨叶转速若太高,也会导致两相乳化,难以分相。
往复筛板萃取塔是将若干层筛板按一定间距固定在中心轴上,由塔顶的传动机构驱动而作往复运动。往复筛板萃取塔的效率与塔板的往复频率密切相关。当振幅一定时,在不发生乳化和液泛的前提下,效率随频率增加而提高。
萃取塔的分离效率可以用传质单元高度
或理论级当量高度
表示。影响脉冲填料萃取塔分离效率的因素主要有填料的种类、轻重两相的流量及脉冲强度等。对一定的实验设备(几何尺寸一定,填料一定),在两相流量固定条件下,脉冲强度增加,传质单元高度降低,塔的分离能力增加。对几何尺寸一定的桨叶式旋转萃取塔来说,在两相流量固定条件下,从较低的转速开始增加时,传质单元高度降低,转速增加到某值时,传质单元将降到最低值,若继续增加转速,将会使传质单元高度反而增加,即塔的分离能力下降。
本实验以水为萃取剂,从煤油中萃取苯甲酸,苯甲酸在煤油中的浓度约为0.2%(质量)。水相为萃取相(用字母E表示,在本实验中又称连续相、重相),煤油相为萃余相(用字母R表示,在本实验中又称分散相)。在萃取过程中苯甲酸部分地从萃余相转移至萃取相。萃取相及萃余相的进出口浓度由容量分析法测定之。考虑水与煤油是完全不互溶的,且苯甲酸在两相中的浓度都很低,可认为在萃取过程中两相液体的体积流量不发生变化。
⒈按萃取相计算的传质单元数
计算公式为:
(6-2-1)
式中:YEt─苯甲酸在进入塔顶的萃取相中的质量比组成,kg苯甲酸/kg水;
本实验中YEt=0。
YEb─苯甲酸在离开塔底萃取相中的质量比组成,kg苯甲酸/kg水;
YE─苯甲酸在塔内某一高度处萃取相中的质量比组成,kg苯甲酸/kg水;
YE*─与苯甲酸在塔内某一高度处萃余相组成XR成平衡的萃取相中的质量比
组成,kg苯甲酸/kg水。
用YE─XR图上的分配曲线(平衡曲线)与操作线可求得
-YE关系。再进行图解积分或用辛普森积分可求得NOE。
⒉按萃取相计算的传质单元高度
(6-2-2)
式中:H—萃取塔的有效高度,m;
—按萃取相计算的传质单元高度,m。
⒊按萃取相计算的体积总传质系数
(6-2-3)
式中:S—萃取相中纯溶剂的流量,kg水/ h;
—萃取塔截面积,m2;
—按萃取相计算的体积总传质系数,
。
同理,本实验也可以按萃余相计算NOR、HOR及KXRa。
四、实验装置
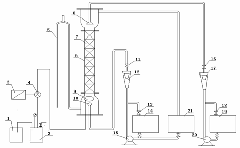
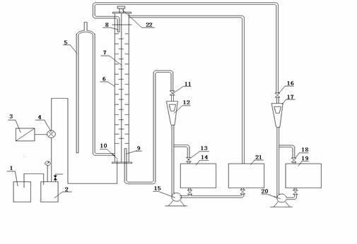
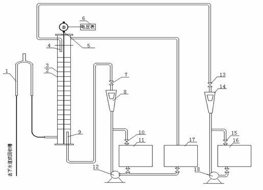
本实验有四套装置,其中两套是填料塔,一套是浆叶旋转萃取塔,一套是往复筛板塔。流程示意图见图6-2-1、6-2-2、6-2-3。各套设备参数如表6-2-1。
表6-2-1萃取塔主要参数
设备编号 |
1 |
2 |
3 |
4 |
设备类型 |
浆叶旋转萃取塔 |
填料萃取塔 |
往复筛板塔 |
填料萃取塔 |
填料类型 |
|
θ环丝网(φ6×6) |
|
丝网CY700 |
萃取段有效高度 |
750mm |
600mm |
750mm |
600mm |
萃取段塔径 |
37mm |
50mm |
37mm |
50mm |
水相和油相的输送用磁力驱动泵,油相和水相的计量用LZB—4型转子流量计。脉冲空气是由频率调节仪控制电磁阀的接通时间和断开时间而形成的。脉冲强度可通过脉冲压力和脉冲频率反映出。脉冲压力可从面板上的压力表读出,其大小可用面板后的针型阀来调节;脉冲频率可从频率调节仪上读出,其大小可通过频率调节仪的触摸按键来调节。

图6-2-1填料萃取流程示意图1—压缩机;2—稳压罐;3—脉冲频率调节仪;4—电磁阀;5—π型管;6—玻璃萃取塔;7—填料;
8—进水分布器;9—脉冲气体分布器;10—煤油分布器;11—煤油流量调节阀;12—煤油流量计;
13—煤油泵旁路阀;14—煤油储槽;15—煤油泵;16—水流量调节阀;17—水流量计;
18—水泵旁路调节阀;19—水储槽;20—水泵;21—出口煤油储槽

图6-2-2搅拌萃取流程示意图
1—压缩机;2—稳压罐;3—脉冲频率调节仪;4—电磁阀;5—π型管;6—玻璃萃取塔;7—浆叶搅拌器;
8—进水分布器;9—煤油分布器;10—脉冲气体分布器;11—煤油流量调节阀;12—煤油流量计;
13—煤油泵旁路阀;14—煤油储槽;15—煤油泵;16—水流量调节阀;17—水流量计;
18—水泵旁路调节阀;19—水储槽;20—水泵;21—出口煤油储槽;22—搅拌电机

图6-2-3振动筛板萃取实验装置流程示意图
1—π型管;2—玻璃塔体;3—筛板;4—水相入口管;5—直流变速单机;6—调压器;
7—流量调节阀;8—煤油流量计;9—煤油入口管;10、15—回流阀;11—煤油储槽;
12、18—磁力泵;13—水流量调节阀;14—水流量计;16—水储槽;17—出口煤油储槽
五、实验方法
⒈ 在实验装置最右边的贮槽内放满水,在中间的贮槽内放满配制好的煤油,分别开动水相和煤油相泵的电闸,将两相的回流阀打开,使其循环流动。
⒉ 全开水转子流量计调节阀,将重相(连续相)送入塔内。当塔内水面快上升到重相入口与轻相出口间中点时,将水流量调至指定值(4~10L/h),并缓慢改变π形管高度使塔内液位稳定在轻相出口以下的位置上。
⒊ 对浆叶旋转萃取塔或往复筛板塔,要开动电动机,适当地调节变压器使其转速或频率达到指定值。调速时应慢慢的升速,绝不能调节过快致使马达产生“飞转”而损坏设备。
⒋ 将轻相(分散相)流量调至指定值(4~10L/h),并注意及时调节π形管的高度。在实验过程中,始终保持塔顶分离段两相的相界面位于轻相出口以下。
⒌ 如果做有脉冲的实验,要开动脉冲频率仪的开关,将脉冲频率和脉冲空气的压力调到一定数值,进行某脉冲强度下的实验。在该条件下,两相界面不明显,但要注意不要让水相混入油相储槽之中。
⒍ 操作稳定半小时后用锥形瓶收集轻相进、出口的样品各约40ml,重相出口样品约50ml备分析浓度之用。
⒎ 取样后,即可改变条件进行另一操作条件下的实验。保持油相和水相流量不变,将旋转转速或脉冲频率或空气的流量调到另一定数值,进行另一条件下的测试。
⒏ 用容量分析法测定各样品的浓度。用移液管分别取煤油相10 ml,水相25 ml样品,以酚酞做指示剂,用0.01 N左右NaOH标准液滴定样品中的苯甲酸。在滴定煤油相时应在样品中加数滴非离子型表面活性剂醚磺化AES(脂肪醇聚乙烯醚硫酸脂钠盐),也可加入其它类型的非离子型表面活性剂,并激烈地摇动滴定至终点。
⒐ 实验完毕后,关闭两相流量计和脉冲频率仪开关,切断电源。滴定分析过的煤油应集中存放回收。洗净分析仪器,一切复原,保持实验台面的整洁。
六、注意事项
⒈ 必须搞清楚装置上每个设备、部件、阀门、开关的作用和使用方法,然后再进行实验操作。
⒉ 在操作过程中,要绝对避免塔顶的两相界面在轻相出口以上。因为这样会导致水相混入油相储槽。
⒊ 由于分散相和连续相在塔顶、底滞留很大,改变操作条件后,稳定时间一定要足够长,大约要用半小时,否则误差极大。
⒋ 煤油的实际体积流量并不等于流量计的读数。需用煤油的实际流量数值时,必须用流量修正公式对流量计的读数进行修正后方可使用。
七、报告内容
⒈用数据表列出实验的全部数据,并以一个实验序号的数据进行计算举例。
⒉对实验结果进行分析讨论:对不同转速或不同脉冲频率或不同空气流量下的塔顶轻相浓度
、塔底重相浓度
及
、
、
值分别进行比较,并加以讨论。
⒊如何用本实验的数据求取理论级当量高度?
八、附录
由苯甲酸与NaOH的化学反应式

可知,到达滴定终点(化学计量点)时,被滴物的摩尔数
和滴定剂的摩尔数
正好相等。即


式中:
—
溶液的体积摩尔浓度,mol溶质/溶液;
—
溶液的体积,ml。