一、实验目的
⒈掌握干燥曲线和干燥速率曲线的测定方法。
⒉学习物料含水量的测定方法。
⒊加深对物料临界含水量Xc的概念及其影响因素的理解。
⒋学习恒速干燥阶段物料与空气之间对流传热系数的测定方法。
⒌学习用误差分析方法对实验结果进行误差估算。
二、实验内容
⒈每组在某固定的空气流量和某固定的空气温度下测量一种物料干燥曲线、干燥速率曲线和临界含水量。
⒉ 测定恒速干燥阶段物料与空气之间对流传热系数。
三、实验原理
当湿物料与干燥介质相接触时,物料表面的水分开始气化,并向周围介质传递。根据干燥过程中不同期间的特点,干燥过程可分为两个阶段。
第一个阶段为恒速干燥阶段。在过程开始时,由于整个物料的湿含量较大,其内部的水分能迅速地达到物料表面。因此,干燥速率为物料表面上水分的气化速率所控制,故此阶段亦称为表面气化控制阶段。在此阶段,干燥介质传给物料的热量全部用于水分的气化,物料表面的温度维持恒定(等于热空气湿球温度),物料表面处的水蒸汽分压也维持恒定,故干燥速率恒定不变。
第二个阶段为降速干燥阶段,当物料被干燥达到临界湿含量后,便进入降速干燥阶段。此时,物料中所含水分较少,水分自物料内部向表面传递的速率低于物料表面水分的气化速率,干燥速率为水分在物料内部的传递速率所控制。故此阶段亦称为内部迁移控制阶段。随着物料湿含量逐渐减少,物料内部水分的迁移速率也逐渐减少,故干燥速率不断下降。
恒速段的干燥速率和临界含水量的影响因素主要有:固体物料的种类和性质;固体物料层的厚度或颗粒大小;空气的温度、湿度和流速;空气与固体物料间的相对运动方式。
恒速段的干燥速率和临界含水量是干燥过程研究和干燥器设计的重要数据。本实验在恒定干燥条件下对帆布物料进行干燥,测定干燥曲线和干燥速率曲线,目的是掌握恒速段干燥速率和临界含水量的测定方法及其影响因素。
⒈ 干燥速率的测定
(7-1)
式中:
—干燥速率,kg /(m2·h);
—干燥面积,m2,(实验室现场提供);
—时间间隔,h;
—
时间间隔内干燥气化的水分量,kg。
⒉ 物料干基含水量
(7-2)
式中:
—物料干基含水量,kg水/ kg绝干物料;
—固体湿物料的量,kg;
—绝干物料量,kg。
⒊ 恒速干燥阶段,物料表面与空气之间对流传热系数的测定
(7-3)
(7-4)
式中:
—恒速干燥阶段物料表面与空气之间的对流传热系数,W/(m2·℃);
—恒速干燥阶段的干燥速率,kg/(m2·s);
—干燥器内空气的湿球温度,℃;
—干燥器内空气的干球温度,℃;
—
℃下水的气化热,J/ kg。
⒋ 干燥器内空气实际体积流量的计算
由节流式流量计的流量公式和理想气体的状态方程式可推导出:
(7-5)
式中:
—干燥器内空气实际流量,m3/ s;
—流量计处空气的温度,℃;
—常压下t0℃时空气的流量,m3/ s;
—干燥器内空气的温度,℃。
(7-6)
(7-7)
式中:C0—流量计流量系数,C0=0.67
A0—节流孔开孔面积,m2;
d0—节流孔开孔直径,d0=0.050 m;
ΔP—节流孔上下游两侧压力差,Pa;
ρ—孔板流量计处
时空气的密度,kg/m3。
四、实验装置
干燥器类型:洞道
洞道尺寸:长1.10米、宽0.125米、高0.180米;
加热功率:500w—1500w; 空气流量:1-5m3/min;干燥温度:40--120℃
重量传感器显示仪:量程(0-200g),精度0.2级;
干球温度计、湿球温度计显示仪:量程(0-150℃),精度0.5级;
孔板流量计处温度计显示仪:量程(0-100℃),精度0.5级;
孔板流量计压差变送器和显示仪:量程(0-4Kpa),精度0.5级;
电子秒表绝对误差0.5秒。

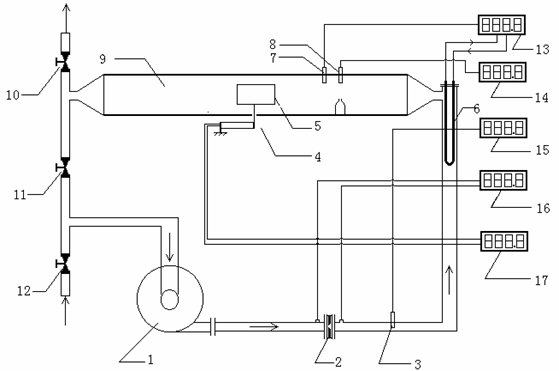
图7-1洞道干燥实验流程示意图
1—离心风机;2—孔板流量计;3、15—孔板流量计处温度计显示仪;4、17—重量传感器显示仪;
5—干燥物料(帆布);6—电加热器;7—干球温度计;8、14—湿球温度计显示仪;9—洞道干燥室;
10—废气排出阀;11—废气循环阀;12—新鲜空气进气阀;13—电加热控制仪表;
16—孔板流量计压差变送器和显示仪
五、操作方法
⒈ 将干燥物料(帆布)放入水中浸湿。
⒉ 调节送风机吸入口的蝶阀12到全开的位置后启动风机。
⒊ 用废气排出阀10和废气循环阀11调节到指定的流量后,开启加热电源。在智能仪表中设定干球温度,仪表自动调节到指定的温度。
⒋ 在空气温度、流量稳定的条件下,用重量传感器测定支架的重量并记录下来。
⒌ 把充分浸湿的干燥物料(帆布)5固定在重量传感器4上并与气流平行放置。
⒍ 在稳定的条件下,记录干燥时间每隔2分钟干燥物料减轻的重量。直至干燥物料的重量不再明显减轻为止。
⒎ 变空气流量或温度,重复上述实验。
⒏ 关闭加热电源,待干球温度降至常温后关闭风机电源和总电源。
⒐ 实验完毕,一切复原。
六、注意事项
⒈ 重量传感器的量程为(0--200克),精度较高。在放置干燥物料时务必要轻拿轻放,以免损坏仪表。
⒉ 干燥器内必须有空气流过才能开启加热,防止干烧损坏加热器,出现事故。
⒊ 干燥物料要充分浸湿,但不能有水滴自由滴下,否则将影响实验数据的正确性。
⒋ 实验中不要改变智能仪表的设置。
七、报告内容
⒈ 根据实验结果绘制出干燥曲线、干燥速率曲线,并得出恒定干燥速率、临界含水量、平衡含水量。
⒉ 计算出恒速干燥阶段物料与空气之间对流传热系数。
⒊ 利用误差分析法估算出α的误差。
⒋ 试分析空气流量或温度对恒定干燥速率、临界含水量的影响。